News
Gated condo community coming to Struthers
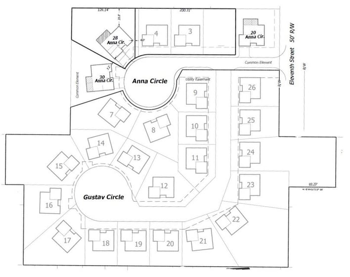
Construction is underway for a new 23-unit gated condominium development in the City of Struthers.
Friday, February 10th 2023, 6:40 AM EST
Updated:

STRUTHERS, Ohio - Construction is underway for a new 23-unit gated condominium development in the City of Struthers.
Arnold Real Estate Advisors announced the project located off Lincoln Street on Anna Circle and Gustav Circle.
With a starting price of $249,000, the 1,400 square foot units will include modern kitchens, cathedral ceilings in the living rooms, and spacious bedrooms, according to J. Arnold.
For more information about the development, contact Dennis Gonatas from J. Arnold Real Estate Advisors at (330) 501-8300 or email at Dennis@HomesByGonatas.com
