Report reveals size of proposed billion dollar graphite plant in Weathersfield
WEATHERSFIELD TWP., Ohio - A Canadian company continues work on plans to build a billion dollar graphite processing plant in Weathersfield Township.
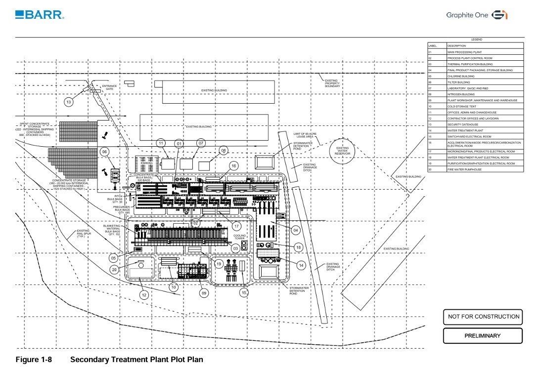
According to a recently completed engineering report, Graphite One envisions a 220-acre site, formerly the Warren Depot, which once served as a U.S. Government stockpile for critical materials, including graphite.
The location will include approximately 88 buildings for the secondary treatment of graphite. Graphite is a natural resource which is a pure form of carbon. It is often used in Electric Vehicle Batteries.
Opening a plant is a part of the companies goal to establish a 100% U.S.-based manufacturing hub for graphite products. The U.S. has not mined graphite domestically since the 1950's.
If the project goes through, Graphite One plans to mine the mineral in Alaska then ship it to Weathersfield Township to be processed.
"This is driven heavily by Department of Defense that wants us to become independent of foreign sources for rare earth minerals," Coviello said.

The planned facility will be capable of processing natural graphite and other materials. Initial operations will focus on treating 50,000 tons of natural graphite annually, with a phased expansion targeting a future capacity of 175,000 tons per year. When fully operational, the plant is projected to yield 256,000 tons of manufactured graphite products annually.

The output will include lithium-ion battery anode materials, specialized purified graphite, and conventional unpurified graphite. The plant will use raw materials, including natural graphite concentrate, artificial graphite precursors, coke, and pitch, employing high-temperature, electrically heated furnaces for purification and graphitization processes.
"I do want to caution we're a long way from the finish line on this …I think there's a chance that we will not see this company at all. I think there are still several steps along the way," Guy Coviello the President & CEO of the Youngstown Warren Regional Chamber told 21 News.
Graphite One still needs the support from the U.S. Government and Department of Defense to bring the treatment plant to Ohio.
The company originally planned to invest $435 million but after the study of the site they found out they can go bigger and now plan to invest almost $4 billion. The plant would bring in more than 150 jobs to Trumbull County.
When Graphite One announced plans for the project a year ago, it said it intends to complete the construction of the Ohio treatment plant within the next three years, before the development of its G1 AK's Graphite Creek Project near Nome, Alaska.
Graphite One has secured a 50-year land lease agreement for the former Warren Depot land, with an option to purchase the property.

The selection of the Weathersfield site was driven by factors such as the region's "relatively lower power rates" (including renewable energy sources), access to a skilled workforce, its location in the heart of the automobile industry, and favorable transportation infrastructure, including road, rail, and nearby barging facilities.
The property has also been certified by the Ohio Environmental Protection Agency’s Voluntary Action Program, confirming that no further environmental cleanup is necessary.
The engineering report may be views by following the link belowbe viewed:
